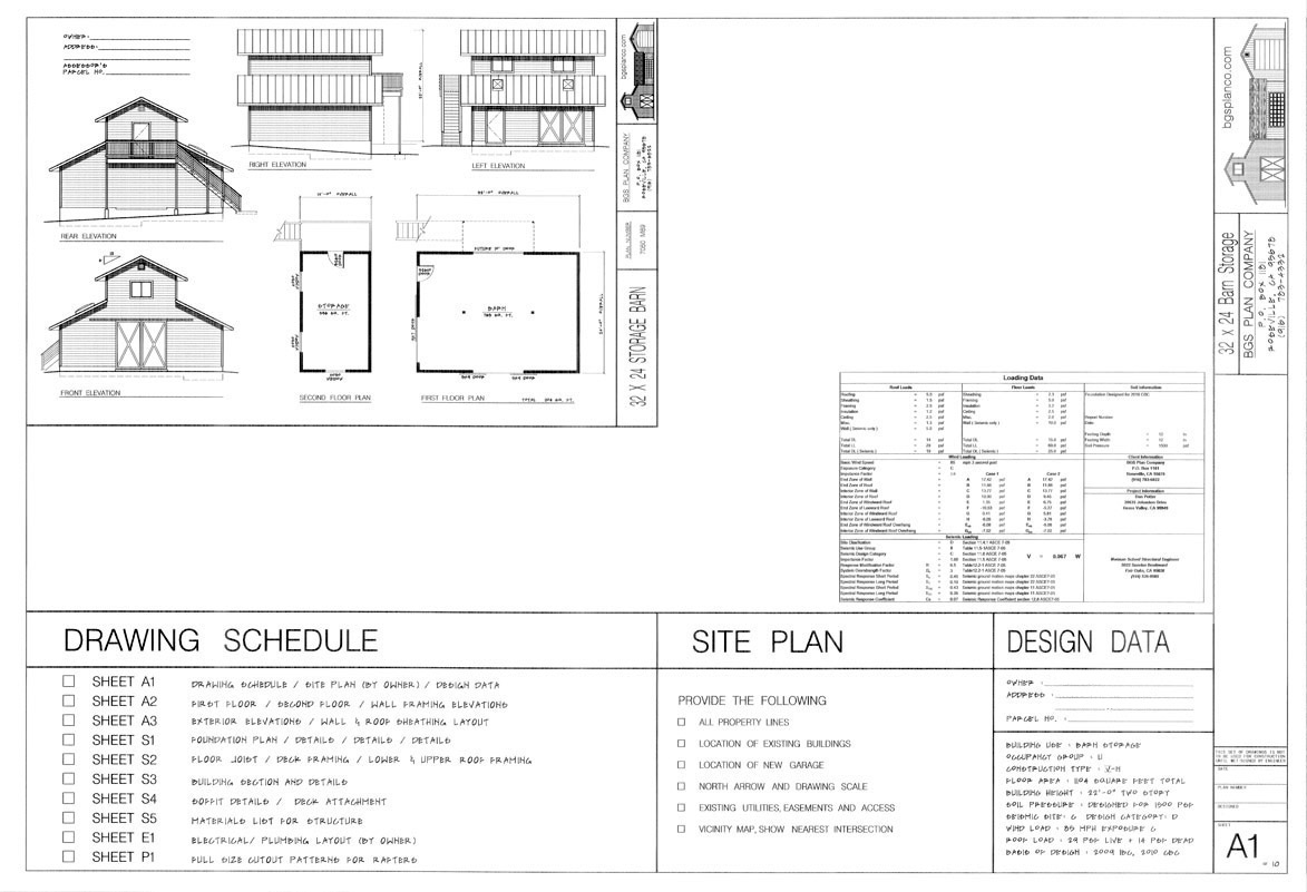
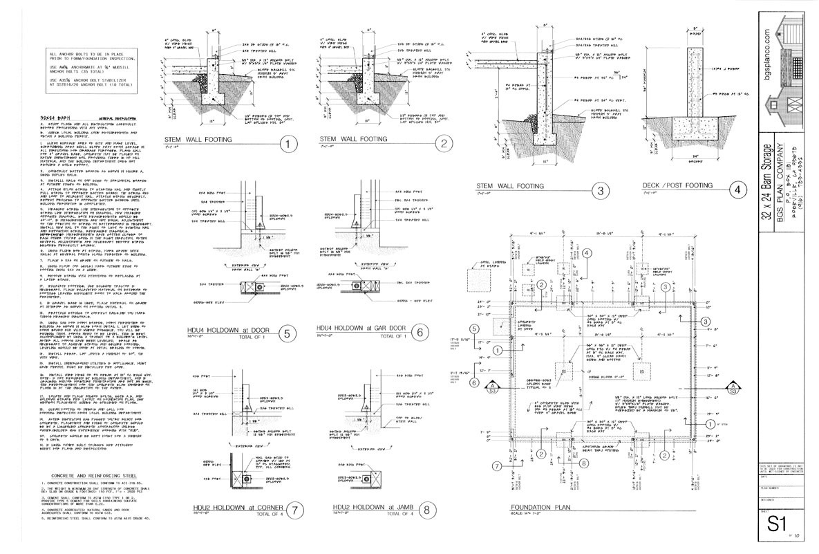
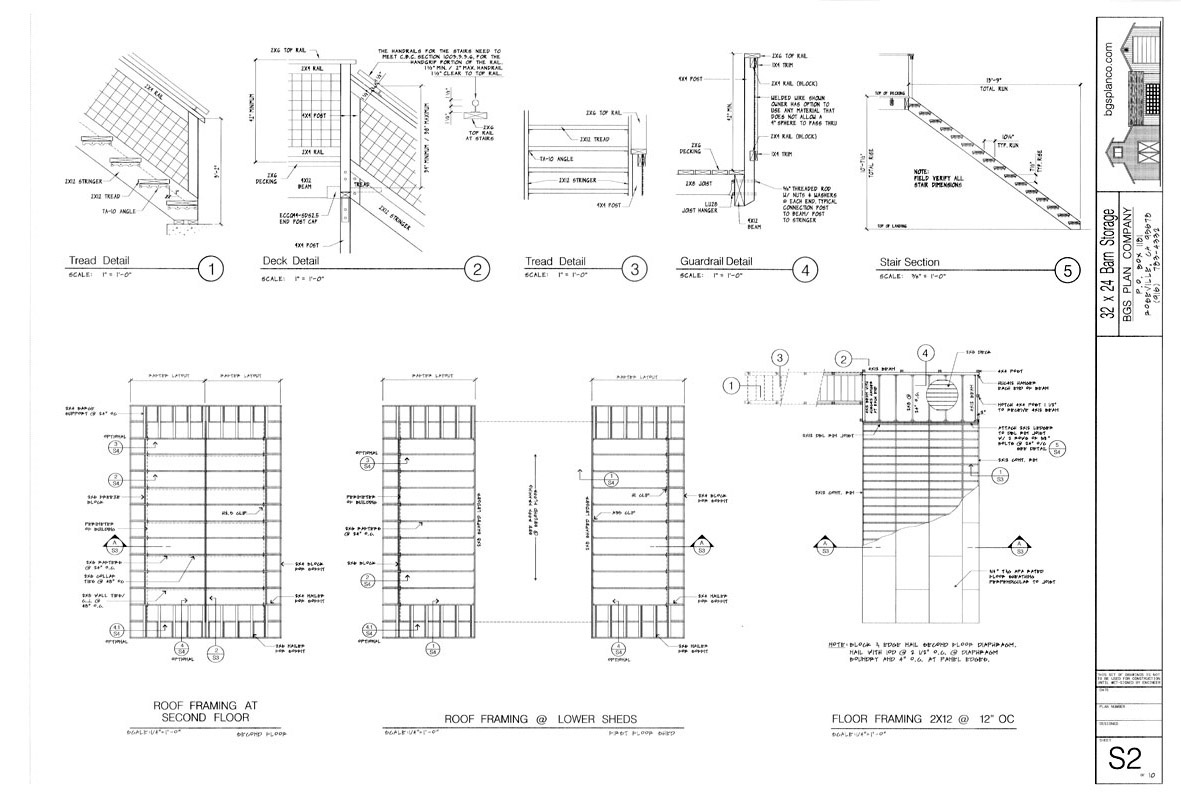
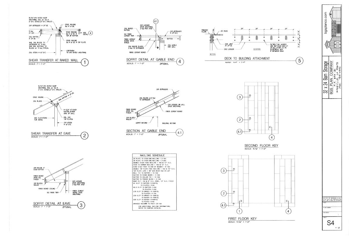
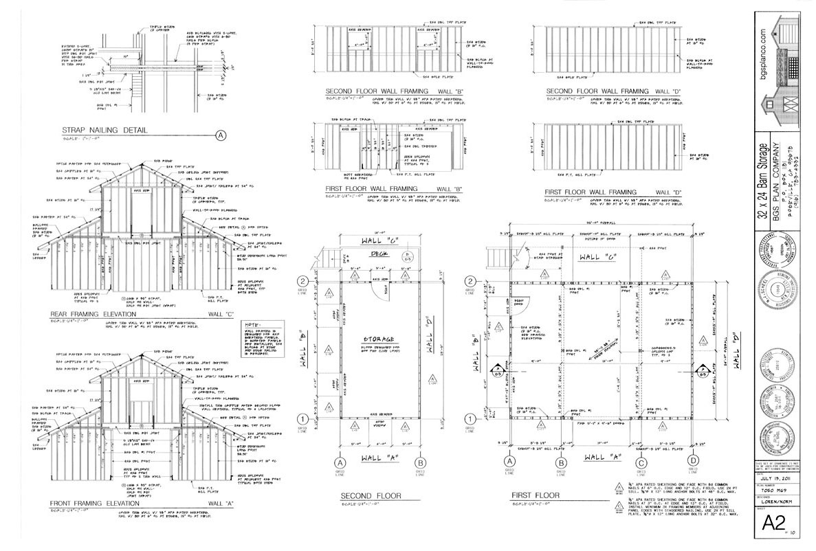
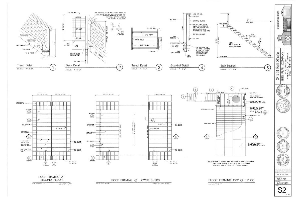
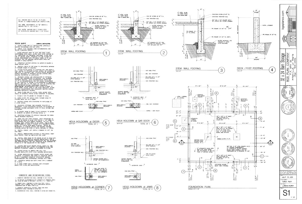
When you order a BGS stock plan you receive a full plan set in PDF format. The plans include pages of details tailored to your building such as elevations, complete material list, layouts for plumbing and electrical, comprehensive construction notes and diagrams to guide you through the entire building process. Below are examples of what to expect.
You are here: Home / Two Story Sample Plan












