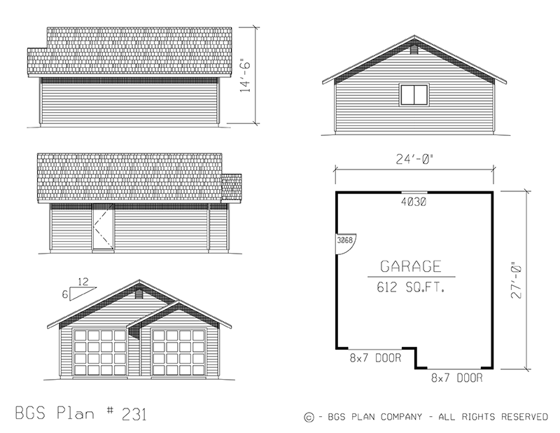
231 is a 24x27 Two Car Garage building with 8‘ tall walls and 2)8x7‘ door(s).
ORDER:
Plan features:
24x27
Building Size
Building Size
8
Wall Height
Wall Height
2)8x7
Door Size(s)
Door Size(s)
14'6
Overall Height
Overall Height
LAP
Exterior Material
Exterior Material
80C
Wind/Exposure
Wind/Exposure
612
Total Sq. Ft.
Total Sq. Ft.
2nd Floor Sq. Ft.
C
Seismic Zone
Seismic Zone
A
Roof Style
Roof Style
6/12
Roof Pitch
Roof Pitch
24/12
Roof Span
Roof Span
25
Roof Load
Roof Load
MFG
Roof Frame
Roof Frame



