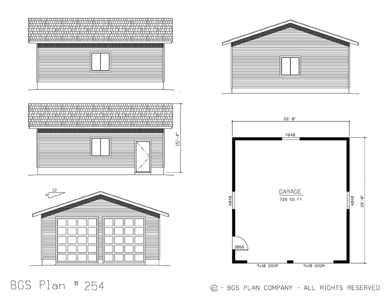
254 is a 26x28 Two Car Garage building with 10‘ tall walls and ‘ door(s).
ORDER:
Plan features:
26x28
Building Size
Building Size
10
Wall Height
Wall Height
Door Size(s)
Overall Height
Exterior Material
Wind/Exposure
728
Total Sq. Ft.
Total Sq. Ft.
2nd Floor Sq. Ft.
D
Seismic Zone
Seismic Zone
A
Roof Style
Roof Style
Roof Pitch
Roof Span
Roof Load
Roof Frame


