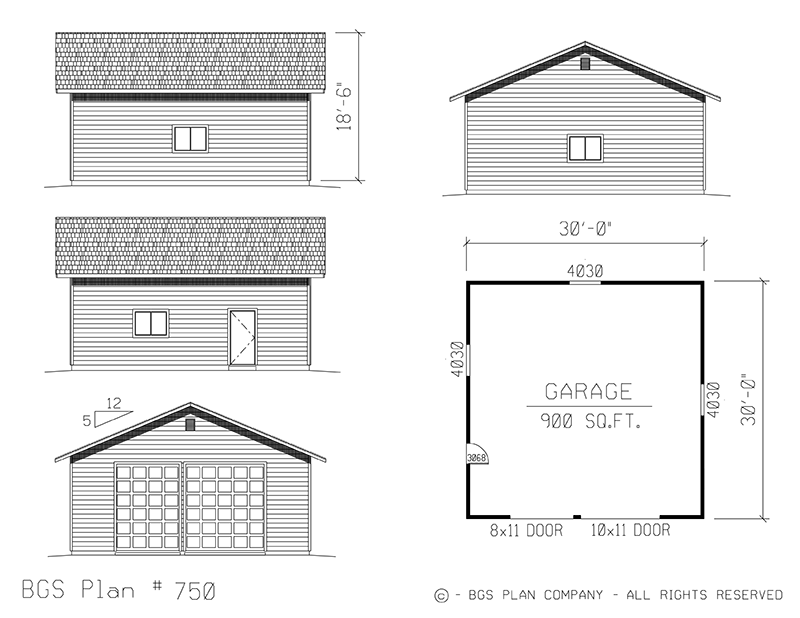
750 is a 30x30 Big Shops & RV building with 12‘ tall walls and 8x11/10x11‘ door(s).
ORDER:
Plan features:
30x30
Building Size
Building Size
12
Wall Height
Wall Height
8x11/10x11
Door Size(s)
Door Size(s)
18'6
Overall Height
Overall Height
LAP
Exterior Material
Exterior Material
80C
Wind/Exposure
Wind/Exposure
900
Total Sq. Ft.
Total Sq. Ft.
2nd Floor Sq. Ft.
D
Seismic Zone
Seismic Zone
A
Roof Style
Roof Style
5/12
Roof Pitch
Roof Pitch
30
Roof Span
Roof Span
40
Roof Load
Roof Load
MFG
Roof Frame
Roof Frame


