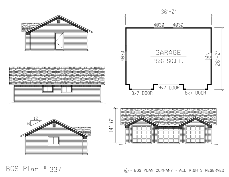
337 is a 36x26 Three Car Garage building with 8‘ tall walls and 2)8x7/9x7‘ door(s).
ORDER:
Plan features:
36x26
Building Size
Building Size
8
Wall Height
Wall Height
2)8x7/9x7
Door Size(s)
Door Size(s)
14'6
Overall Height
Overall Height
LAP
Exterior Material
Exterior Material
80C
Wind/Exposure
Wind/Exposure
906
Total Sq. Ft.
Total Sq. Ft.
2nd Floor Sq. Ft.
D
Seismic Zone
Seismic Zone
Roof Style
6/12
Roof Pitch
Roof Pitch
24/10
Roof Span
Roof Span
20
Roof Load
Roof Load
MFG
Roof Frame
Roof Frame



